Параметры проекта:

Площадь: 149.1 кв.м.
Жилая площадь: 75.4 кв.м.
Высота здания: 7.1 м.
Этажность: 1
Количество комнат: 4
Пристройки: Терраса / Веранда
Стиль дома: Ар-Деко, Бунгало

Крыша:

Тип крыши: не указано
Материалы крыши: Четырёхскатная

Стены:

Материалы стен: Гибкая черепица, Деревянный каркас

Стоимость от:

14164500 ₽

Внимание! Стоимость носит информационный характер и не является публичной офертой. Подробную информацию можно получить по телефонам указанным на сайте

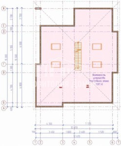
Планировка

Планировка первый этаж
Планировка второй этаж

Другие проекты