Параметры проекта:

Площадь: 285 кв.м.
Этажность: 2
Количество комнат: 7
Пристройки: Терраса / Веранда, Камин, Баня / Сауна, Панорамные окна

Крыша:

Тип крыши: Плоская
Материалы крыши: Металлочерепица, металлопрофиль, мягкая кровля и др.

Стены:

Материалы стен: Газобетонный блок, rирпич, керамзитобетон, керамический блок и др.

Стоимость от:

27075000 ₽

Внимание! Стоимость носит информационный характер и не является публичной офертой. Подробную информацию можно получить по телефонам указанным на сайте

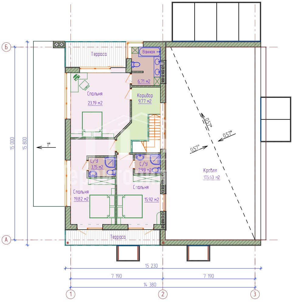
Планировка

Планировка дома 234-01
Планировка первый этаж
Планировка дома 234-01
Планировка второй этаж

Другие проекты