Параметры проекта:

Площадь: 143 кв.м.
Жилая площадь: 52.25 кв.м.
Высота здания: 6.8 м.
Этажность: 1
Количество комнат: 4
Пристройки: Терраса / Веранда, Камин
Стиль дома: Европейский

Крыша:

Тип крыши: Двухскатная, С фронтонами
Материалы крыши: Металлочерепица

Стены:

Материалы стен: азобетон / Газосиликат, Брус / Бревно, Деревянный каркас

Стоимость от:

13585000 ₽

Внимание! Стоимость носит информационный характер и не является публичной офертой. Подробную информацию можно получить по телефонам указанным на сайте

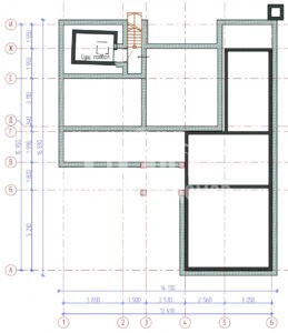
Планировка

Планировка первый этаж
Планировка второй этаж

Другие проекты