Параметры проекта:

Площадь: 595 кв.м.
Жилая площадь: 188.62 кв.м.
Высота здания: 8.79 м.
Этажность: 2
Количество комнат: 6
Пристройки: Гараж / Навес, Терраса / Веранда, Баня / Сауна, Панорамные окна
Стиль дома: Минимализм, Хай-тек

Крыша:

Тип крыши: не указано
Материалы крыши: Рулонная гидроизоляция

Стены:

Материалы стен: Кирпич, Керамический блок (теплая керамика)

Стоимость от:

56525000 ₽

Внимание! Стоимость носит информационный характер и не является публичной офертой. Подробную информацию можно получить по телефонам указанным на сайте

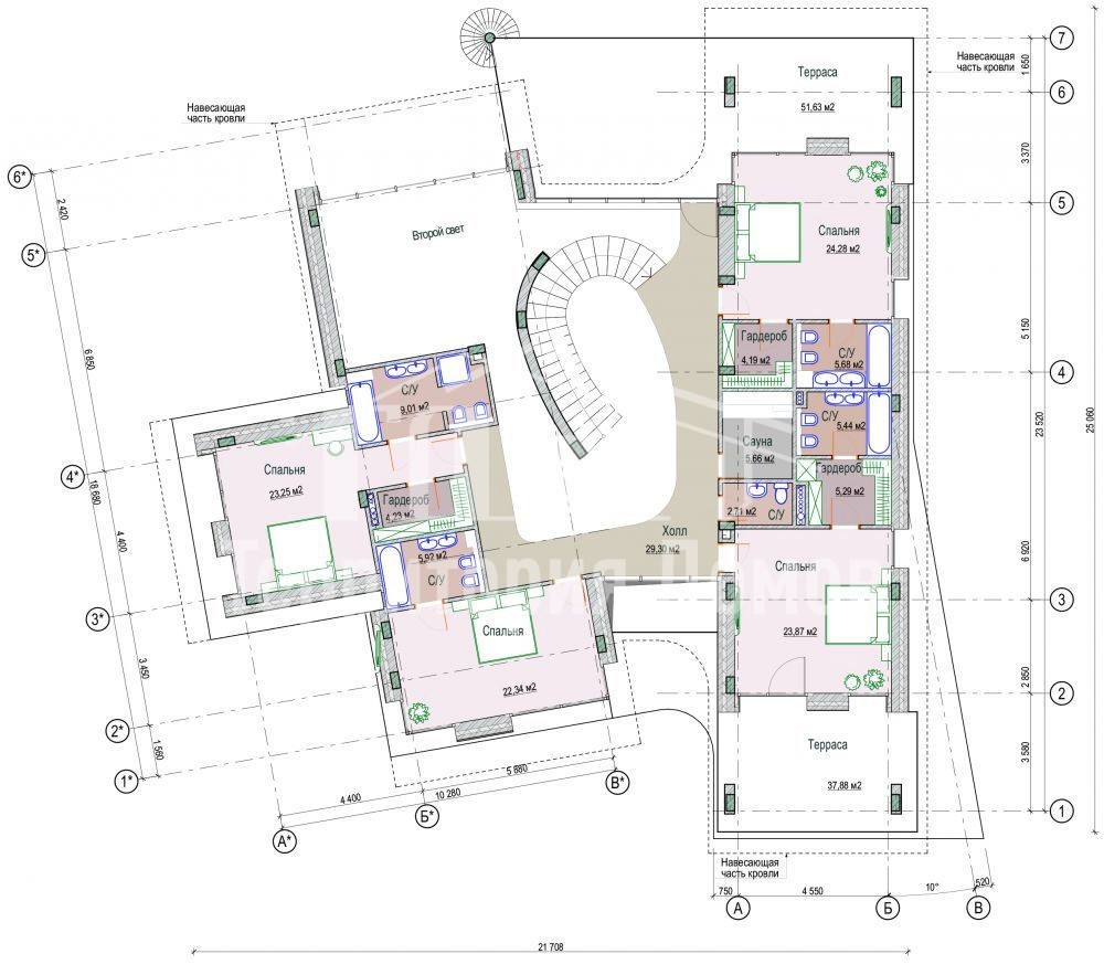
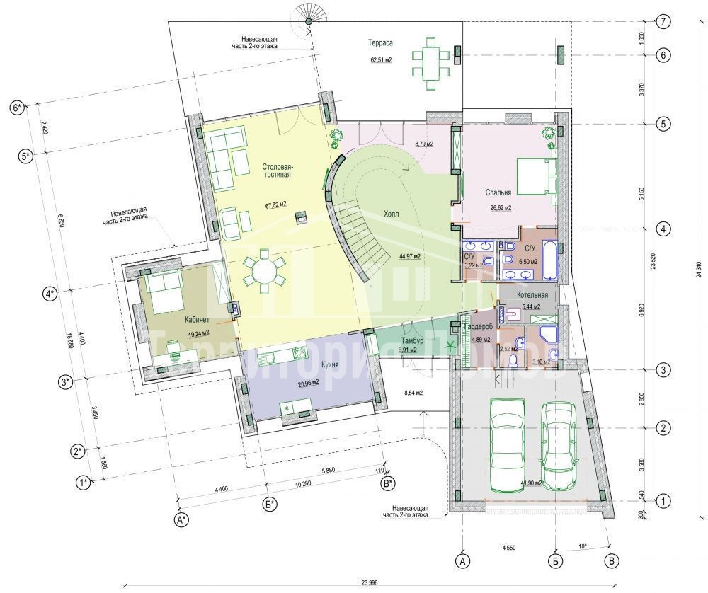
Планировка

Планировка первый этаж
Планировка второй этаж

Другие проекты

Просмотренные проекты