Параметры проекта:

Площадь: 442 кв.м.
Жилая площадь: 174.47 кв.м.
Высота здания: 7.18 м.
Этажность: 2
Количество комнат: 6
Стиль дома: Минимализм, Хай-тек

Крыша:

Тип крыши: не указано

Стены:

Материалы стен: Керамический блок (теплая керамика)

Стоимость от:

41990000 ₽

Внимание! Стоимость носит информационный характер и не является публичной офертой. Подробную информацию можно получить по телефонам указанным на сайте

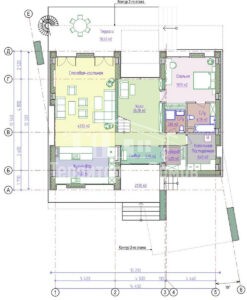
Планировка

Планировка первый этаж
Планировка второй этаж

Другие проекты