Параметры проекта:

Площадь: 805 кв.м.
Жилая площадь: 173.3 кв.м.
Высота здания: 8.8 м.
Этажность: 2
Количество комнат: 5
Пристройки: Гараж / Навес, Терраса / Веранда, Камин, Баня / Сауна, Панорамные окна / Подвал
Стиль дома: Минимализм, Хай-тек, Европейский

Крыша:

Тип крыши: Плоская
Материалы крыши: Рулонная гидроизоляция

Стены:

Материалы стен: Керамический блок (теплая керамика), Монолитный каркас

Стоимость от:

76475000 ₽

Внимание! Стоимость носит информационный характер и не является публичной офертой. Подробную информацию можно получить по телефонам указанным на сайте

Планировка

Планировка первый этаж
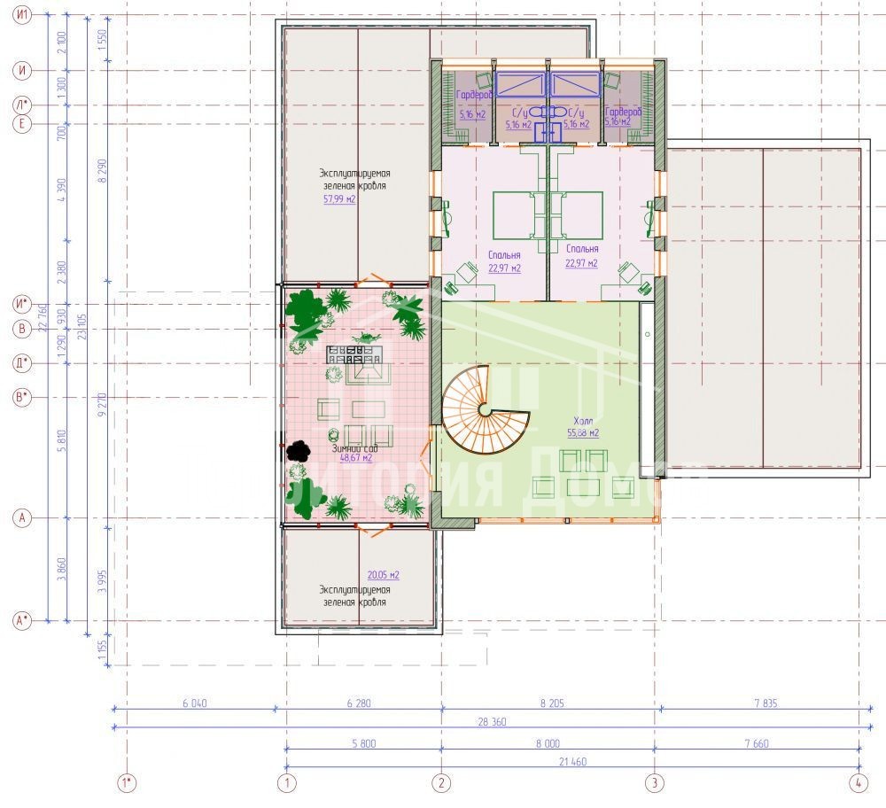
Планировка второй этаж

Другие проекты

Просмотренные проекты